East Oakland Boxing Association

DIG Coop collaborated with the City of Oakland Redevelopment Agency to provide a Green Job Training Program at the East Oakland Boxing Association (EOBA) facility. Twelve EOBA interns and several volunteers graduated as Apprentices following a three month build-out and retrofit of the garden and facility.
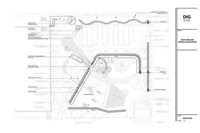
Project Features
- 3000 gal Rain Tank for irrigation
- Bioswale for filtering polluted rainwater
- Bamboo Bio Shield
- Greywater System to orchard + drought tolerant landscaping
- Pathways, Berms and Basins
- Dual Flush Toilet Conversions/EBMUD Water Conservation Kit









